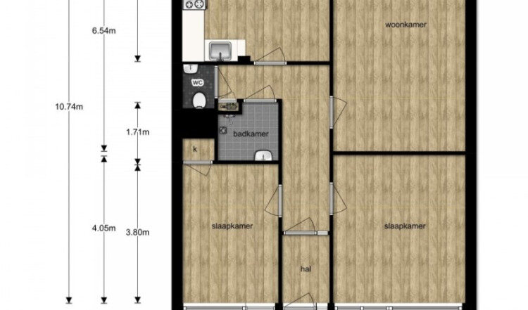
dit Appartement is verhuurd Saffierstraat in Alphen aan den Rijn

  • 84 m2
  • 3 kamers
  • ? Begindatum
  • Onbepaalde tijd
Op deze pagina vind je alle informatie over dit Appartement in Alphen aan den Rijn. Als je vragen hebt kun je contact opnemen met de aanbieder.

Object: Direct bij de eigenaar
Huurtermijn: Onbepaalde termijn
Oplevering: Zie foto
Inkomen eis:3,0 x Bruto huur
Garantiestelling mogelijk: Ja
Borg: 1 Maand
Bemiddeling kosten: Nee
Woningdelers toegestaan: Ja
Huisdieren toegestaan: Afhankelijk van de Eigenaar
Huurtoeslag grens: Nee
Geschikt voor studenten: Afhankelijk van de Eigenaar

Lees meer met een pakket!

Algemene informatie

Stad Alphen aan den Rijn
Wijk/buurt: Anders
Inschrijven gemeente: Ja
Opleverniveau: Kaal
Huisgenoten: Geen
Begindatum: Vraag de adverteerder
Bezichtiging In overleg

Faciliteiten

Eigen badkamer
Eigen keuken
Eigen toilet
Eigen voordeur
Vraag de adverteerder
Vraag de adverteerder
Eigen woonkamer
Tonen op kaart

Anders, Alphen aan den Rijn

Meer informatie over wonen in Anders